Woodfield Court Higher Woodfield Road
£345,000 Leasehold
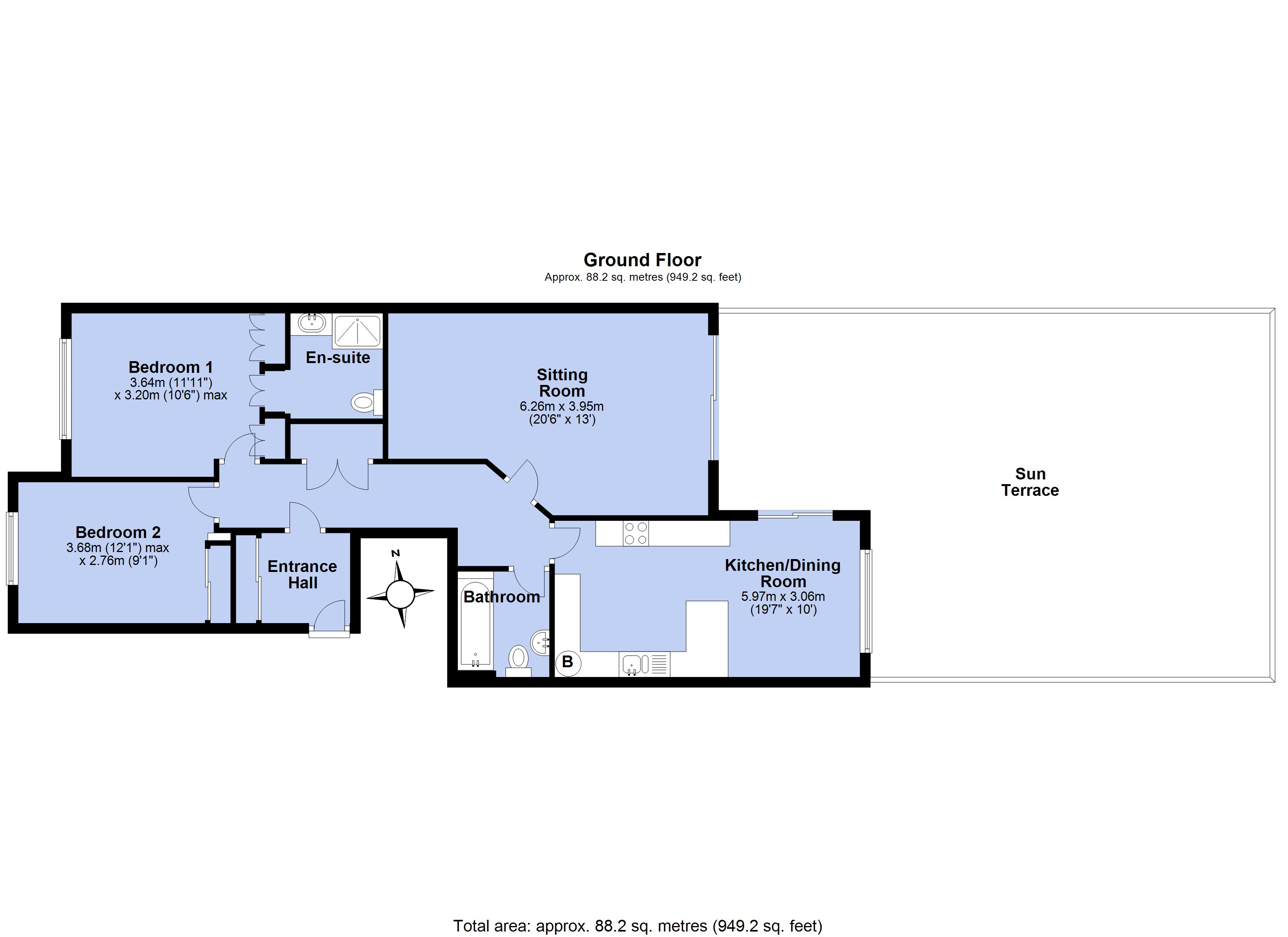
With an exceptional terrace capturing sunshine throughout the day, the apartment forms part of a well-respected development, positioned to the south west corner of the building. It is situated at entrance level, or has lift access from the parking area. The front door opens to a small vestibule with a double width cloaks cupboard and door to the inner hall, kitchen/dining room overlooking and opening to the terrace, sitting room also opening to the terrace, 2 bedrooms, en-suite shower room and bathroom. Communal gardens for the residents enjoyment.
Enquire about
this property
Add this Property to your favourites
Download Brochure
View Floorplan
Map & Nearby
Check Broadband Speed in the area
Broadband Speed: 80.0Mbps
x
How we calculate broadband speed
Broadband speed can vary depending on a number of factors.
The main one is the kind of connection and what it's physically made of. So Victorian copper wire is relatively slow
and new fibre optic runs literally at the speed of light.
How far away your property is from the telephone exchange or the box at the end of the street can also affect your
speed.
The other thing that'll affect your broadband performance is 'contention'. That just means how many people are on the
connection at the same time.
Our data provider collect speed test information from a number of sources as well as data about the type of
connection and distance from the exchange to calculate the speed for a postcode.
Superfast Broadband: 80Mbps
How do we know?
Share
Facebook